This modern family house is located in Israel and designed by Levy: Chamizer Architects. The house is modern, stylish and comfortable for a large family. The design of this house makes it easy for residents to interact in the indoors or outdoors, with lots of windows and glass doors leading to the courtyard of the house.
Backyard features a small and relaxing garden, and a fantastic swimming pool with elongated shape. House also has a double high living room. Wooden floors are used throughout the family house, making it feel more comfortable and warm.
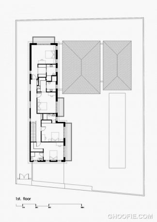
We also included exact plans for this modern family house, so be sure to go through the whole gallery if you’re interested.










